Ficha
Adosado en venta en Madrid (ARAVACA )
REF. 1229

252 m2

50 m2

5

5

1
venta: 1.170.000 €
Descripción

INMOAZABAL vende chalet adosado ideal para familias, en Aravaca, con zonas verdes, piscina y espacio para crecer. Chalet adosado de 252 m² construidos, situado en una urbanización muy tranquila y familiar de Aravaca, con amplias zonas verdes comunitarias, piscina. Un entorno seguro y agradable, ideal para familias que buscan calidad de vida, espacio y tranquilidad, sin renunciar a servicios y buena comunicación con Madrid.

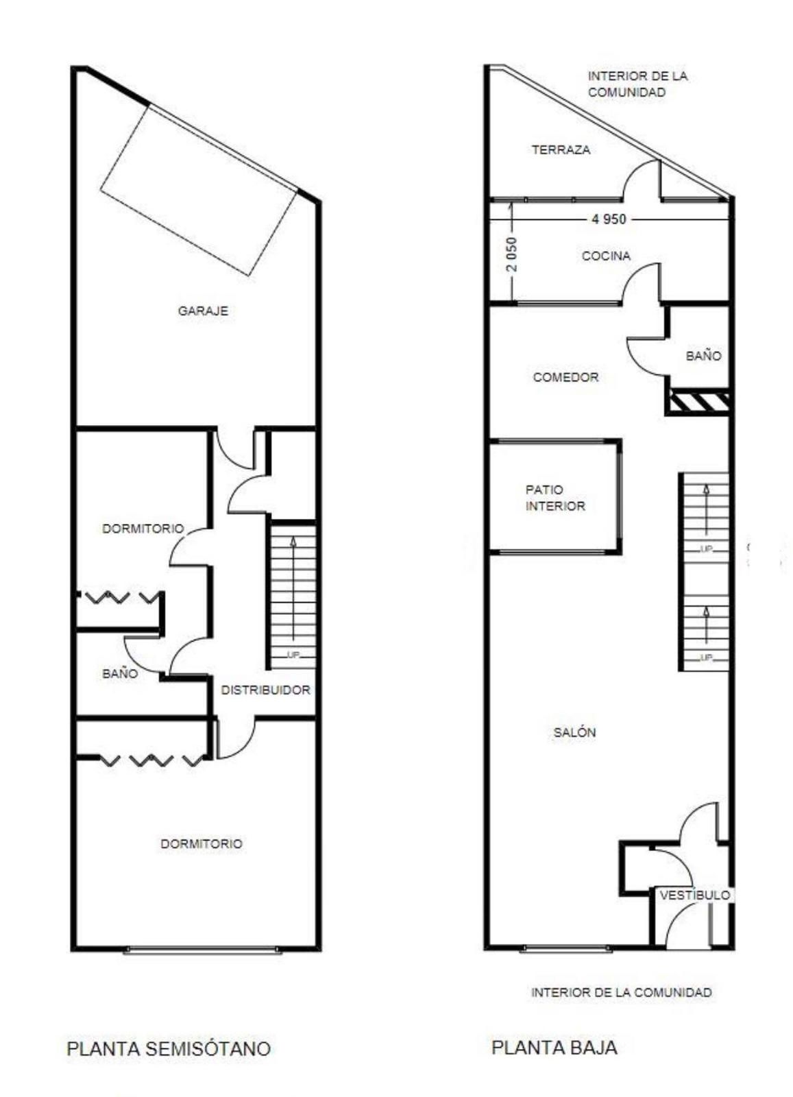
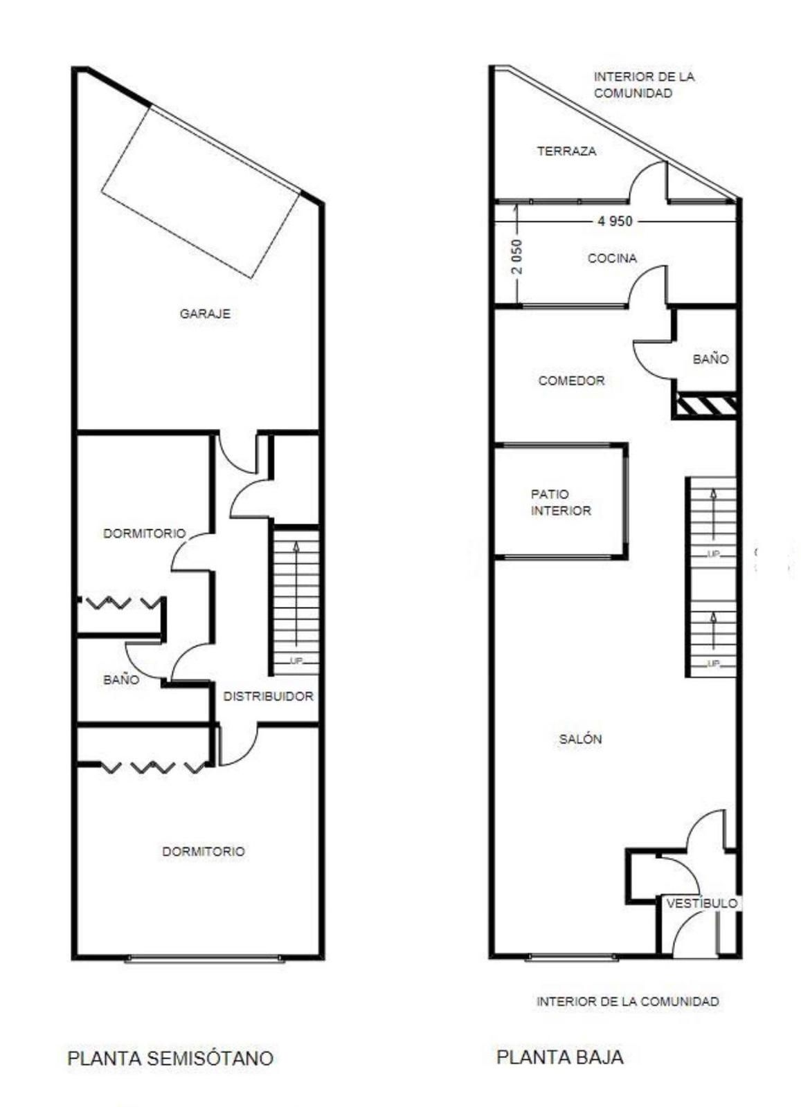
Planta principal:

Salón amplio y luminoso con chimenea y con patio interior ajardinado, que aporta una luz natural muy especial.

Zona de comedor y cocina independiente, con posibilidad de abrirla al salón y crear una gran cocina con office.

Opción de ampliar la cocina incorporando la terraza tendedero.

Primera planta:

3 dormitorios y 2 baños completos.

Dormitorio principal en suite, amplio y muy luminoso.

Planta superior (buhardilla):

Gran dormitorio con baño completo y salida a una terraza descubierta de aprox. 50 m².

Posibilidad de cerrar la terraza e incorporarla a la vivienda.

Planta sótano:

Amplia sala multiusos (sala de juegos, despacho, gimnasio…).

Baño completo y habitación de servicio.

Posibilidad de acceso independiente.

Trastero y garaje con acceso directo a la urbanización.

Una vivienda pensada para familias que quieren vivir Aravaca de verdad, con verde, tranquilidad y espacio para crecer.

PUNTOS CLAVE:

✔ Urbanización familiar con piscina y zonas verdes

✔ Entorno tranquilo y seguro para niños

✔ Vivienda muy luminosa y con recorrido

✔ Parada de autobús en la puerta

✔ Cercanía a colegios y servicios

✔ Excelente acceso a carreteras

Características
Precio Venta 1.170.000 €
Precio/m² 4.643
Gastos de comunidad 160 €
I.B.I. 990 €
Año de construcción 1983
Construidos 252 m2
Dormitorios 5
Baños 5
Cocina Amueblada
Calefacción Individual
Terraza
Aire acondicionado
Piscina comunitaria
Garaje
Zonas comunes
Calificación Energética (D) VER
Luz
Gas
Agua
Escalas de eficiencia


-
-

Tu agente
Sonia Huerta (Venta)
Contáctanos

Si deseas más información sobre esta propiedad, por favor, rellena el formulario.

 Sí, he leído y/o acepto las Condiciones de uso y la Política de privacidad